Eladó üdülő/nyaraló Balatonakarattya 299 000 000 Ft

Leírás

Eladó egy 2 szintes teljes balatoni panorámás, medencés ingatlan Balatonakarattyán!
Ez a szerkezetkész, közel 200 négyzetméteres nyaraló a Balaton partjától pár száz méterre, 1108 m2-es telken található. Teljes tervdokumentációval és érvényes építési engedéllyel.
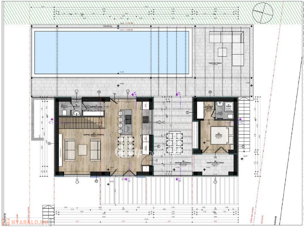
A telek és az épület különleges adottságai rengeteg lehetőséget rejtenek magukban hisz a tulajdonosok egy igazán egyedi projektbe fogtak, amely nagymértékben növeli az ingatlan értékét. A környéken ritkán találunk olyan ingatlant, amely ilyen kivételes balatoni panorámával rendelkezik, ezért különösen értékes. A tervrajzokon is kivehető egy hatalmas amerikai konyhás nappali, 4 szoba (mindegyikhez külön fürdő) számos eszméletlen fedett és nyitott terasz és egy 4x14 méteres lenyűgöző medence ami ennek a pazar ingatlannak a karakterét alkotja.
Telek besorolása: Üh3, beépíthetősége 10%, építménymagasság 4,5 m, zöldfelület 65%. Az eddig megvalósult kivitelezés és a tervek mind megfelelnek ezeknek a feltételeknek, így az új tulajdonos akadálymentesen folytathatja az építkezést, hogy ezt a különleges otthont befejezze.
Az ingatlan befejezésének első körben meghatározott időpontja 2027 év januárja, de az időpont rugalmasan módosítható.
A telek közművesítve van: villany, víz és a csatornahálózat már elérhető. (hírközlés szintén telken belül).
A tetőfedés befejezésének a munkálatai napokban elkezdődött, ami nem jelent többletköltséget az új tulajdonosának.
Ez az ingatlan nem csak a Balaton közelsége, hanem a kivételes panoráma és az egyedi lehetőségek miatt is egyedülálló ajánlat!
Amennyiben hirdetésem felkeltette az érdeklődését, várom hívását, akár hétvégén is, időpontegyeztetést követően rugalmasan megtekinthető. Jöjjön el, nézze meg, tegyen rá ajánlatot! Az OTP Ingatlanpont teljes körű ügyintézéssel áll az eladók és a vevők rendelkezésére. A kínálatunkból választott ingatlan finanszírozásához kedvezményes hitelkonstrukciót kínálunk. Az adásvételi szerződés megkötéséhez igény szerint megbízható ügyvédi közreműködést biztosítunk, és segítséget nyújtunk az adásvételhez kapcsolódó ügyek intézéséhez is, hogy az ügyfelek számára zökkenőmentes és biztonságos tranzakciót biztosítsunk

Referencia szám: M287999

Üdülő/nyaraló részletei

Ár: 299 000 000 Ft
Méret: 180 négyzetméter
Azonosító: 11548592
Irodai azonosító: M287999-4980783
Telek: 1108 Négyzetméter
Építőanyag: Tégla
Jelleg: Üdülő
Építési év: Új építésű
Egész szobák: 5

Egyéb jellemzők

  • Garázs

Térkép


Így keressen nyaralót négy egyszerű lépésben. Csupán 2 perc, kötelezettségek nélkül!

Szűkítse a nyaralók
listáját
Válassza ki a megfelelő
nyaralót
Írjon a hirdetőnek
Várjon a visszahívásra